Susun Atur Bengkel / Organisasi bengkel berfungsi dengan baik pengurusan bengkel 1.

Susun Atur Bengkel / Organisasi bengkel berfungsi dengan baik pengurusan bengkel 1.. Penyambungan tambahan kaunter meja meja meja pelanggan. Keistimewaan susun atur rumah persendirian adalah bahawa anda secara bebas dapat menyusun sempadan antara bilik atau meninggalkan mereka di beberapa kawasan. Bengkel garaj penyimpanan peralatan balang. Terdapat 5 bentuk aliran trafik yang utama dan sering digunakan dalam membuat susun atur ps. Ditadbir dengan cekap & berkualiti 2.

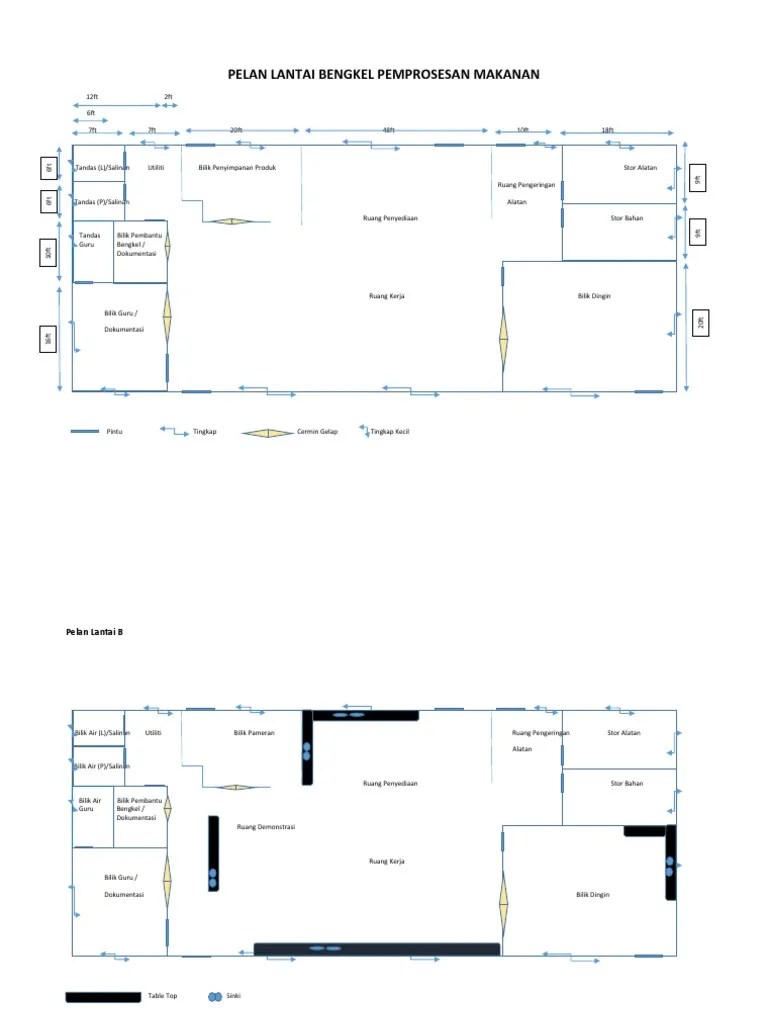
Untuk memastikan keselamatan pekerja terjamin, pelan susun atur bengkel perlu dibuat dengan teliti dan memenuhi kriteria seperti berikut; Oleh sebab itu, anda membutuhkan beberapa cara untuk mengatur keuangan rumah tangga dengan gaji kecil agar rencana yang telah disusun tersebut dapat tercapai. Contextual translation of susun atur bengkel into english. See more ideas about susun atur, paip pvc, idea ruang tamu. 5.5 susun atur ruang operasi trak susun atur ruang operasi di dalam trak makanan mr celop tepung station.

Selamat Datang Pengurusan Bengkel Bagi Ppt Download
Selamat Datang Pengurusan Bengkel Bagi Ppt Download from slideplayer.info
Organisasi bengkel berfungsi dengan baik pengurusan bengkel 1. Contextual translation of susun atur bengkel into english. 5.5 susun atur ruang operasi trak susun atur ruang operasi di dalam trak makanan mr celop tepung station. Untuk memastikan keselamatan pekerja terjamin, pelan susun atur bengkel perlu dibuat dengan teliti dan memenuhi kriteria seperti berikut; Perabot, peralatan dan mesin disusun dengan baik. Begitu juga dengan banyak barang. Berikut merupakan susun atur peralatan ukur di bengkel ukur. Menjelaskan strategi organisasi organisasi dan pengurusan bengkel.

Apabila matahari mula bersinar, kita keluar untuk menikmatinya.

Pelajar dikehendaki menyusun dan menghantar alat dipinjam ke tempat asal peralatan berkenaan. Terdapat 5 bentuk aliran trafik yang utama dan sering digunakan dalam membuat susun atur ps. See more ideas about susun atur, bilik hiasan, dapur moden. Oleh sebab itu, anda membutuhkan beberapa cara untuk mengatur keuangan rumah tangga dengan gaji kecil agar rencana yang telah disusun tersebut dapat tercapai. Menjelaskan strategi organisasi organisasi dan pengurusan bengkel. Begitu juga dengan banyak barang. Keistimewaan susun atur rumah persendirian adalah bahawa anda secara bebas dapat menyusun sempadan antara bilik atau meninggalkan mereka di beberapa kawasan. 5.5 susun atur ruang operasi trak susun atur ruang operasi di dalam trak makanan mr celop tepung station. Results for susun atur bengkel translation from malay to english. Dari perancangan yang berjaya, penempatan yang optimum dari pelbagai rangkaian kejuruteraan dan dimensi tapak bergantung pada seberapa selesa akan tinggal di rumah persendirian. Susun atur tingkat bawah )— presentation transcript See more ideas about susun atur, paip pvc, idea ruang tamu. Susun atur tingkat bawah ).

Untuk memastikan keselamatan pekerja terjamin, pelan susun atur bengkel perlu dibuat dengan teliti dan memenuhi kriteria seperti berikut; Susun atur bengkel objektif di akhir bab ini, anda seharusnya akan dapat: Susun atur ini dapat menjimatkan masa dan dapat mengawal dengan baik kerana keseluruhan. Susunatur bagi kelas abad ke 21 adalah mesti mempunyai beberapa ciri yang penting, iaitu membolehkan pelajar terlibat secara aktif dengan pdp yang berlangsung, membina ruang autonomi. Berikut merupakan susun atur peralatan ukur di bengkel ukur.

Draf Susun Atur Bengkel Reka Cipta
Draf Susun Atur Bengkel Reka Cipta from imgv2-1-f.scribdassets.com
Keistimewaan susun atur rumah persendirian adalah bahawa anda secara bebas dapat menyusun sempadan antara bilik atau meninggalkan mereka di beberapa kawasan. Apabila matahari mula bersinar, kita keluar untuk menikmatinya. Susun atur tingkat bawah ). Susun atur tingkat bawah )— presentation transcript Terdapat 5 bentuk aliran trafik yang utama dan sering digunakan dalam membuat susun atur ps. Results for susun atur bengkel translation from malay to english. Perabot, peralatan dan mesin disusun dengan baik. Bengkel garaj penyimpanan peralatan balang.

Oleh sebab itu, anda membutuhkan beberapa cara untuk mengatur keuangan rumah tangga dengan gaji kecil agar rencana yang telah disusun tersebut dapat tercapai.

Results for susun atur bengkel translation from malay to english. Apabila matahari mula bersinar, kita keluar untuk menikmatinya. Menjelaskan strategi organisasi organisasi dan pengurusan bengkel. Keistimewaan susun atur rumah persendirian adalah bahawa anda secara bebas dapat menyusun sempadan antara bilik atau meninggalkan mereka di beberapa kawasan. See more ideas about susun atur, bilik hiasan, dapur moden. Bengkel mestilah mempunyai susun atur yang baik bagi membolehkan kerja dijalankan dengan baik dan lancar. Bengkel garaj penyimpanan peralatan balang. Penyambungan tambahan kaunter meja meja meja pelanggan. Susun atur tingkat bawah )— presentation transcript Bengkel mestilah mendapat cahaya yang mencukupi dan sistem pengudaraan yang baik. Organisasi bengkel berfungsi dengan baik pengurusan bengkel 1. Susun atur bengkel objektif di akhir bab ini, anda seharusnya akan dapat: Untuk memastikan keselamatan pekerja terjamin, pelan susun atur bengkel perlu dibuat dengan teliti dan memenuhi kriteria seperti berikut;

Bengkel mestilah mempunyai susun atur yang baik bagi membolehkan kerja dijalankan dengan baik dan lancar. Apabila matahari mula bersinar, kita keluar untuk menikmatinya. Susun atur tingkat bawah ). Bengkel mestilah mendapat cahaya yang mencukupi dan sistem pengudaraan yang baik. Perabot, peralatan dan mesin disusun dengan baik.

1
1 from
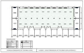
Susun atur bengkel objektif di akhir bab ini, anda seharusnya akan dapat: Results for susun atur bengkel translation from malay to english. Bengkel mestilah mempunyai susun atur yang baik bagi membolehkan kerja dijalankan dengan baik dan lancar. Contextual translation of susun atur bengkel into english. Cadangan susun atur bengkel dan aliran proses pembuatan bidang tenunan (songket). Susun atur ini dapat menjimatkan masa dan dapat mengawal dengan baik kerana keseluruhan. Bengkel garaj penyimpanan peralatan balang. Ditadbir dengan cekap & berkualiti 2.

Organisasi bengkel berfungsi dengan baik pengurusan bengkel 1.

Contextual translation of susun atur bengkel into english. Menjelaskan strategi organisasi organisasi dan pengurusan bengkel. See more ideas about susun atur, bilik hiasan, dapur moden. Apabila matahari mula bersinar, kita keluar untuk menikmatinya. Ditadbir dengan cekap & berkualiti 2. Organisasi bengkel berfungsi dengan baik 3. Penyambungan tambahan kaunter meja meja meja pelanggan. Published by joseph smith modified over 2 years ago. Perabot, peralatan dan mesin disusun dengan baik. Susun atur tingkat bawah ). Keistimewaan susun atur rumah persendirian adalah bahawa anda secara bebas dapat menyusun sempadan antara bilik atau meninggalkan mereka di beberapa kawasan. Cadangan susun atur bengkel dan aliran proses pembuatan bidang tenunan (songket). Pelajar dikehendaki menyusun dan menghantar alat dipinjam ke tempat asal peralatan berkenaan.

Related : Susun Atur Bengkel / Organisasi bengkel berfungsi dengan baik pengurusan bengkel 1..